UFR, IFSI et Bibliothèque, campus Tohannic - Vannes (56) | Jacques Ripault Architecture
UFR, IFSI et Bibliothèque, campus Tohannic
Vannes, Morbihan (56)
2013
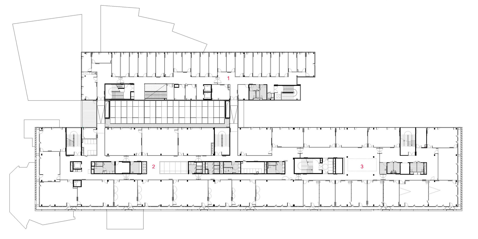
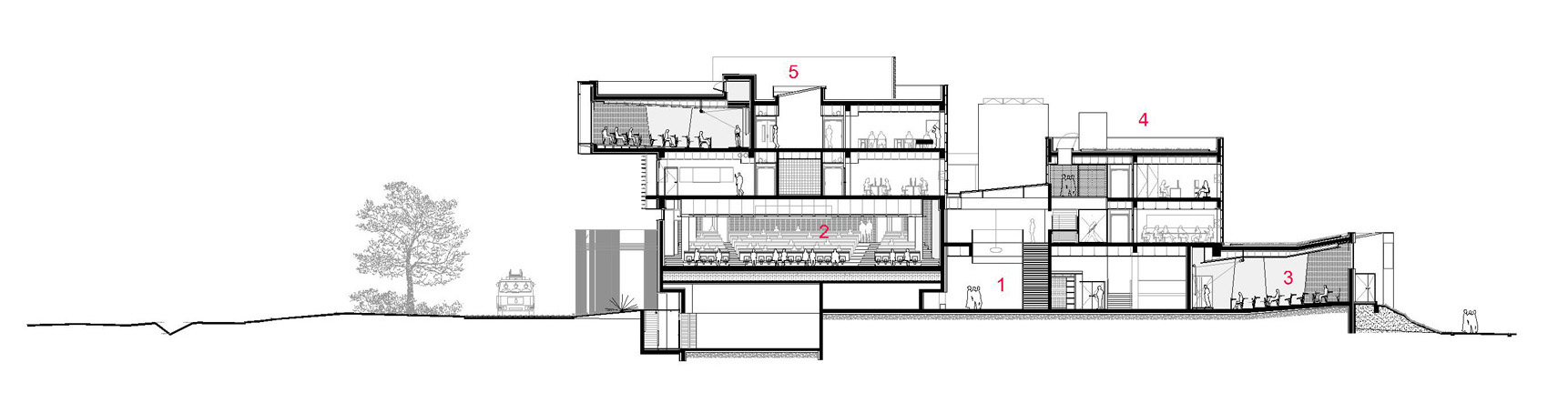
Sur le plateau granitique du campus, le projet sera le bâtiment central, il regroupe 10 Amphithéâtres, blocs en béton strié et ajouré, ancrés au sol longent la déambulation des halls, l’espace entre eux constitue des traverses et des échappées.
Ces volumes sur double hauteurs sont couverts par une double barre, nappe constituée par les salles d’enseignements au sud et les bureaux des enseignants et de l’université au Nord.
Les parties nord sont revêtues de verre opalescent, émaillé et translucide pour ramener de la lumière.
Au Sud, les salles d’enseignement sont protégées par une préfaçade de ventelles horizontales aléatoires qui confère une texture cinétique le long de la rocade sud de Vannes. A l’Est et à l’Ouest cette préfaçade est ajourée par des ventelles verticales.
C’est une architecture qui exprime les différentes parties et les usages qui rassemblent 2300 étudiants.
Salles de cours, 10 amphithéâtres dont 1 de 500 places, pôle enseignant, pôle de recherche, école de pratique pour l’Institut de Formation en Soins Infirmiers. Campus numérique prévu en seconde tranche.
Maîtrise d'ouvrage
Communauté d’Agglomération du Pays de Vannes / Centre Hospitalier Bretagne Atlantique
Maîtrise d'ouvrage déléguée
EADM
Maîtrise d'œuvre
JRA + BETOM Ingénierie Loire Bretagne bet tce économiste SLH Ile de France hqe / LASA acoustique
Surface
UFR : 7 242 m² IFSI : 2 995 m² Bibliothèque : 805 m²
Coût
18 M.€ HT
Calendrier
livré en 2013









