La Cartonnerie - Salle de Musiques Actuelles - Reims (51) | Jacques Ripault Architecture

La Cartonnerie - Salle de Musiques Actuelles

Reims, Marne (51)

2004

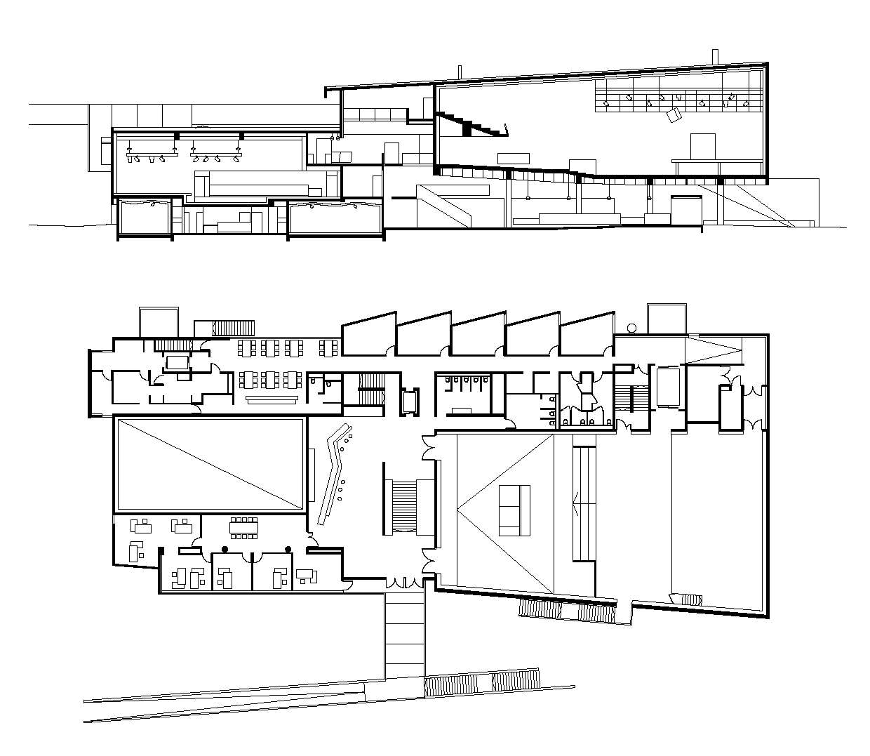
Salle de Musiques Actuelles

2 salles de concert (1200 et 570 personnes)

8 studios de repetition – loges

administration – espace multimedia - bars

Maîtrise d'ouvrage

Ville de Reims

Maîtrise d'ouvrage déléguée

SAEM Reims Développement

Maîtrise d'œuvre

JRA + YGREC bet économiste / LASA acoustique / AS2E scénographe

Surface

4 000 m²

Coût

6,12 M.€ HT

Calendrier

livré en 2004