Siège de Gaz de France Iroise - Brest (29) | Jacques Ripault Architecture

Siège de Gaz de France Iroise

Brest, Finistère (29)

1998

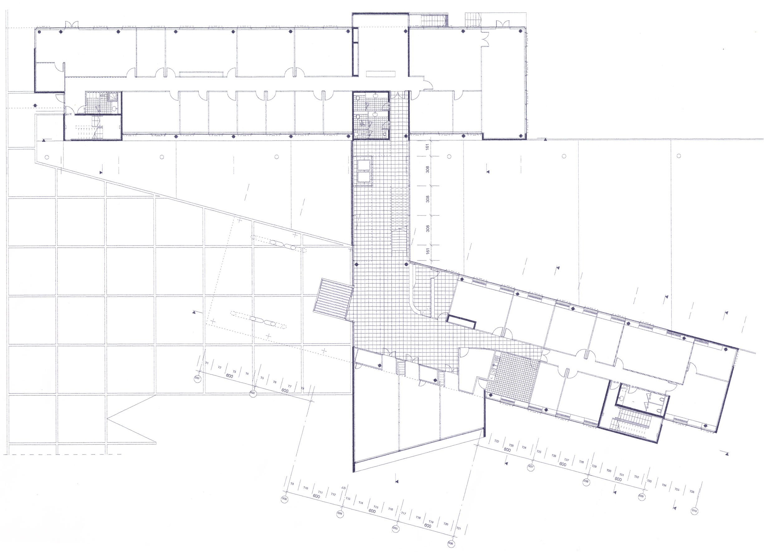
Sur un terrain en V Zac de Keraudren, perpendiculaire à la voie rapide d’accès sur Brest, le projet marque une ouverture permettant de sauvegarder un alignement de pins maritimes. Deux corps de bâtiments reliés par une galerie en verre d’escaliers et d’ascenseurs dessinent un faisceau.

Le parvis d’accès marque le basculement du portique d’entrée soulevé par deux poteaux brésiliens. L’architecture exprime les articulations entre les parties vitrées sombres en acier ou en granit en contrepoint avec les paroies et les allèges en béton blanc polis.

Les espaces de bureaux permettent une liberté d’implantation, les façades sont équipées d’un meuble intérieur intégrant chauffage, électricité, réseau informatique et rangements. Les extrémités intégrent les salles de réunion dont la grande salle du conseil à l’angle Sud Ouest vers Brest.

La galerie de circulation, est un déambulatoire transparent évidé sur les 4 étages en coursives, lieu de rencontre, d’échanges et de relation des différents services du siège.

L’implantation révèle la pente, les façades et les sols et les couvertures dessinent des continuités pour orienter des ouvertures , des retraits, des sous faces qui évident l’architecture et manifeste la lumière.

Maîtrise d'ouvrage

GAZ DE FRANCE

Maîtrise d'œuvre

JRA + BETOM bet tce, économiste

Surface

3 600 m²

Coût

3,35 M.€ HT

Calendrier

livré en 1998