Espace culturel Luxembourg - Meaux (77) | Jacques Ripault Architecture
Espace culturel Luxembourg
Meaux, Seine-et-Marne (77)
1994
Espace culturel Charles Beauchart :
Salle de spectacles de 600 places - Auditorium de 120 places - Médiathèque (4000 m2)
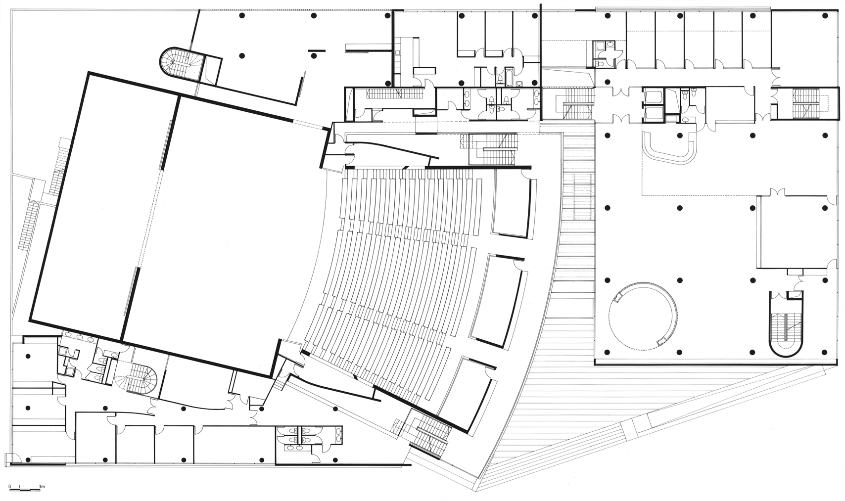
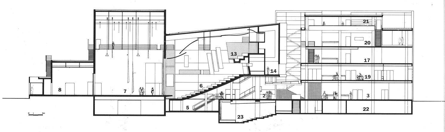
Dans la boucle de la Marne, le Centre Culturel longe la route de Paris et s’ouvre vers la place du marché et la cathédrale en hauteur.
Le projet exprime la complémentarité d’un programme culturel associant la musique, la danse, le théâtre, la lecture, l’image… Le vis-à-vis et le face à face de la salle de spectacle et de la médiathèque marque une tension, une aimantation qui fixe le lieu et son entrée. Ces deux entités sont reliées par un hall associant tous les accès aux étages dans le prolongement d’un parvis en contrebas pour l’isoler de la route.
La médiathèque ancrée au nord est un volume régulier statique, calé en référence à la cathédrale par la voûte qui couvre les salles en gradins. La salle de spectacle, volume complexe et dynamique, bascule et s’ouvre vers la place du marché par le galbe des promenoirs qui desservent la grande salle.
La dualité de ces deux parties : espaces de réflexion et de mouvement, activités de jour et de nuit, sont exprimées par des structures visibles ou cachées, des transparences ou opacités. Le vis-à-vis introduit des contacts entre les deux parties: glissements, cadrages, passages, surplombs d’un espace vers l’autre. Lieu collectif et urbain par excellence, le Centre Culturel exprime le mouvement et l’ouverture.
Maîtrise d'ouvrage
Ville de Meaux
Maîtrise d'œuvre
JRA + AS MIZRAHI bet économiste / COMMINS / LASA acoustique / Bernard JAUNAY scénographe
Surface
10 000 m²
Coût
15,85 M.€ HT
Calendrier
livré en 1994












