Collège Pablo Neruda - Gagny (93) | Jacques Ripault Architecture
Collège Pablo Neruda
Gagny, Seine-Saint-Denis (93)
2009
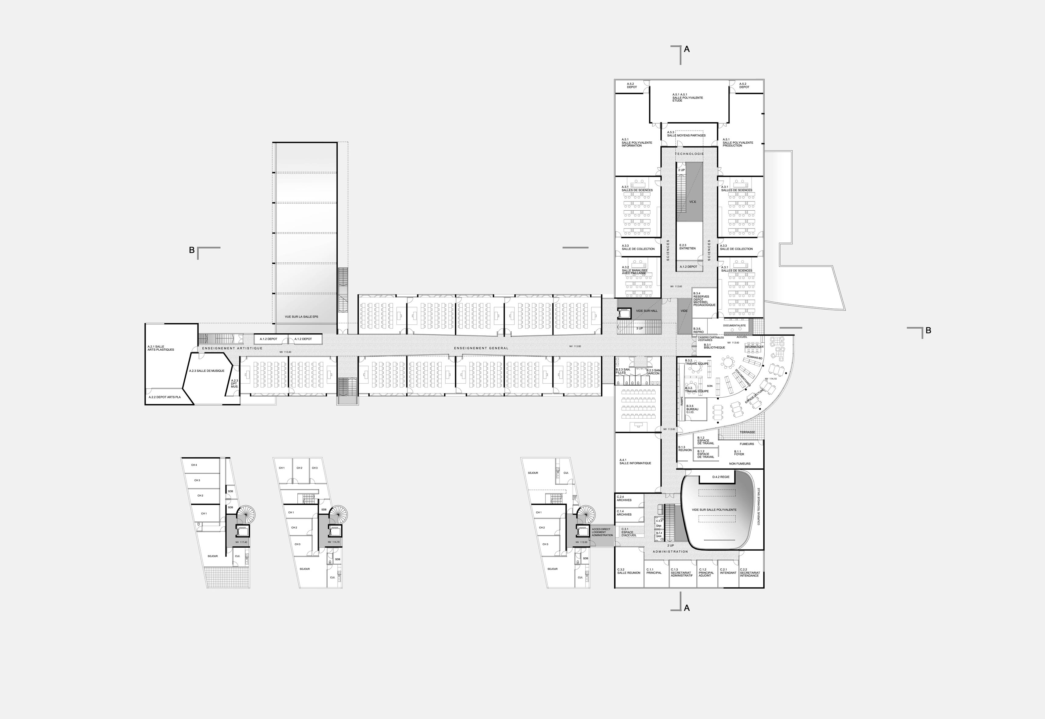
Sur les hauteurs de Gagny, le lycée sur R+1 étage croise deux parties en angle qui délimitent la cour :
Un parallélépipède Nord Sud ocre rouge soulevé qui rassemble toutes les fonctions atypiques : salle à manger, CDI, salle polyvalente et salles de sciences. Dans l’autre direction, une aile blanche rassemble les classes, jusqu’aux salles d’arts plastiques sur lesquelles s’adossent la salle de sport ocre et la cour de récréation délimitée par des murs de soutainement en gabions.
La succession hall, préau, cour remontent et s’étagent en suivant la pente diagonale du terrain.
La salle polyvalente, volume lumineux et le CDI volume aérien pivotent alternativement dessous et dessus du bloc principal. Le projet délimite et imbrique les espaces intérieurs /extérieurs pour constituer un ensemble cohérent.
Maîtrise d'ouvrage
Département de la Seine-Saint-Denis
Maîtrise d'ouvrage déléguée
SODEDAT 93
Maîtrise d'œuvre
JRA + BERIM bet tce / JC DRAUART économiste / LASA acoustique / CAP TERRE hqe
Surface
7 300 m²
Coût
13 M.€ HT
Calendrier
livré en 2009




















