Centre Hospitalier Philippe Pinel - Amiens (80) | Jacques Ripault Architecture

Centre Hospitalier Philippe Pinel

Amiens, Somme (80)

1997

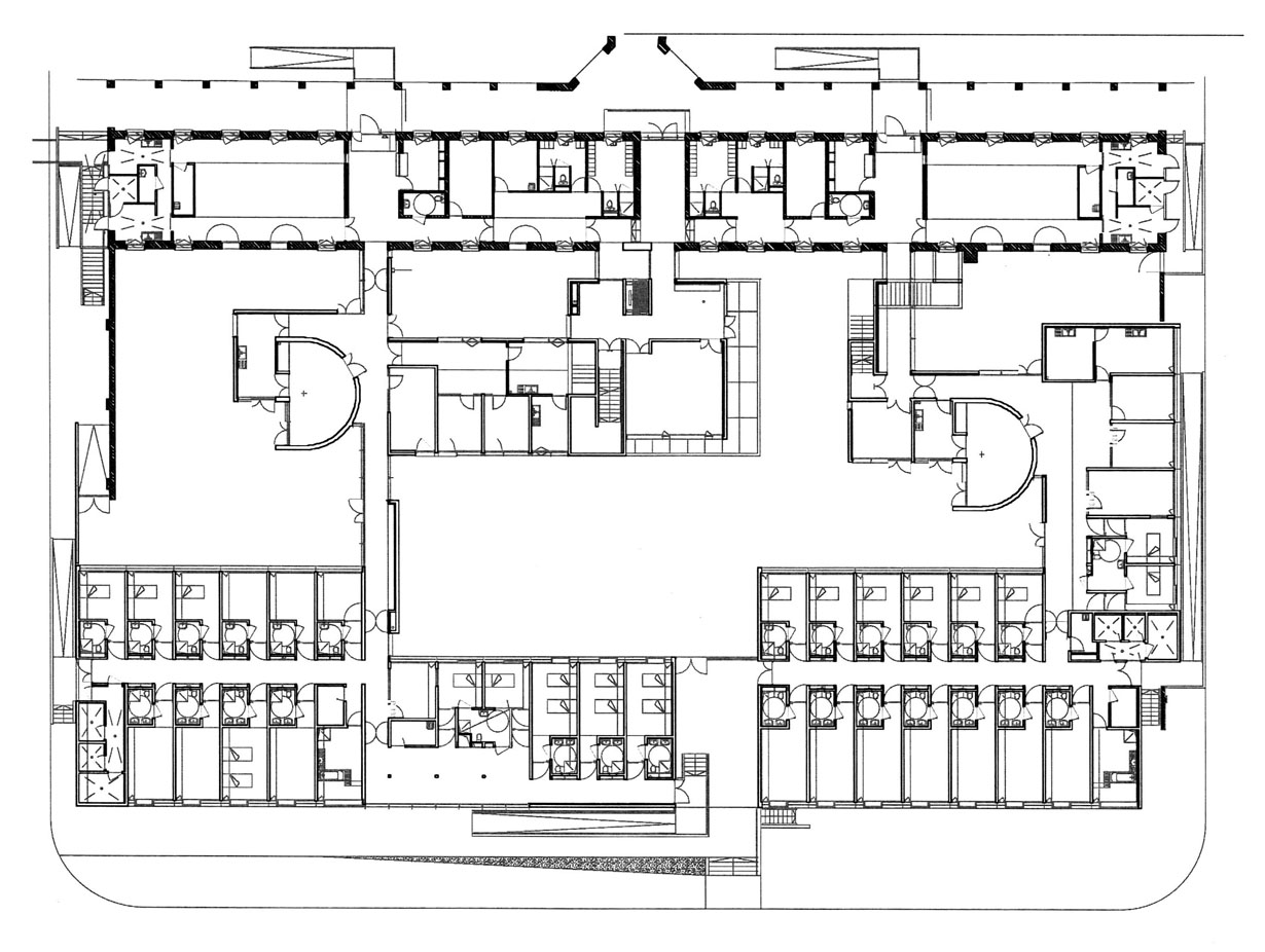
Restructuration de l’Hôpital Philippe Pinel à Amiens

260 lits court, moyens et longs séjours, rééducation

Maîtrise d'œuvre

JRA

Surface

11 000 m²

Coût

9,45 M.€ HT

Calendrier

projet non construit