Centre de Secours - Pierrefitte-sur-Seine (93) | Jacques Ripault Architecture
Centre de Secours
Pierrefitte-sur-Seine, Seine-Saint-Denis (93)
2010
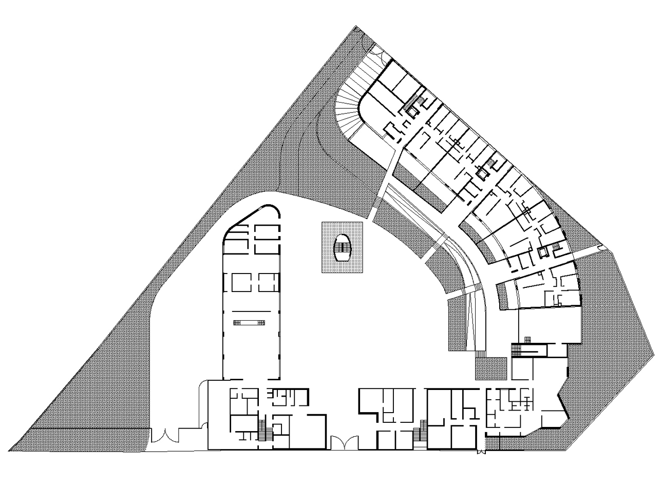
Programme : Construction d'un Centre de Secours et de lutte contre l'incendie : bâtiment opérationnel et 25 logements pour les familles + parking.
Ce centre de secours comprend : zone publique (dont bureau des opérations de transmission, administration — commandement), zone de travail, zone de vie (cuisine, détente -restauration, sommeil), zone technique -énergie.
concours 2010
Maîtrise d'ouvrage
Préfecture de Police / Ville de Paris
Maîtrise d'œuvre
JRA
Surface
6 103 m² SHON
Calendrier
concours








