Centre de Conférence L’Oréal - Aulnay (93) | Jacques Ripault Architecture

Centre de Conférence L’Oréal

Aulnay, Seine-Saint-Denis (93)

2003

Le projet est situé sur le campus de recherche l’Oréal au cœur des installations industrielles. Le centre redistribue les espaces et prend en compte toutes les géométries du site pour lui insuffler une énergie nouvelle.

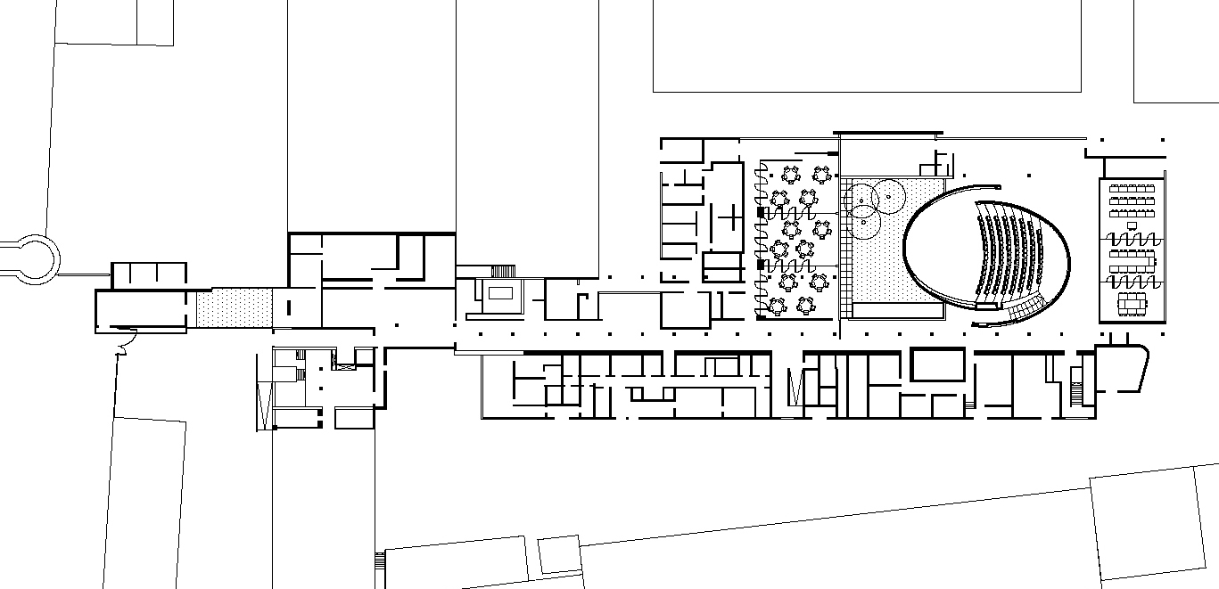
Le projet transforme des espaces existants fortement occupés par des installations techniques vétustes et d’entrepôts inoccupés en créant une nouvelle centralité. Le projet réalisé autour d’un patio, représentation d’un jardin originel, d’une portion de nature, se greffe aux bâtiments existants et renoue les circulations du site.

Les démolitions des hangars et la réalisation du projet de plains pieds ont permis d’ouvrir les façades du restaurant du personnel à l’étage, alors fermé en créant une terrasse d’agrément. Le projet associe la salle de conférence ovoïde en béton blanc au plan horizontal métallique des salons et salles à manger qui gravitent autour du patio accompagnant une déambulation libre en boucle retrouvant la lumière naturelle.

La relation de deux coques décalées exprime le fonctionnement de la salle par ses accès en partie haute ou en bas du parterre, près des conférenciers. Le projet s’inscrit comme un cœur au centre du site, il rassemble toutes les parties isolées. Il transforme des espaces encombrés et rejetés en lieux de lumière, de débats et d’échanges, dans un édifice horizontal.

Maîtrise d'ouvrage

L’OREAL

Maîtrise d'œuvre

JRA + GEC INGENIERIE bet économiste

Surface

4 000 m²

Coût

5,27 M.€ HT

Calendrier

livré en 2003