Centre d’Art et de Culture - Meudon (92) | Jacques Ripault Architecture
Centre d’Art et de Culture
Meudon, Hauts-de-Seine (92)
2000
Dans le contexte pavillonnaire de Meudon, cet équipement recompose et partage un vide pour qualifier différents lieux : le parvis, la cour de l’école, les parkings et les services techniques.
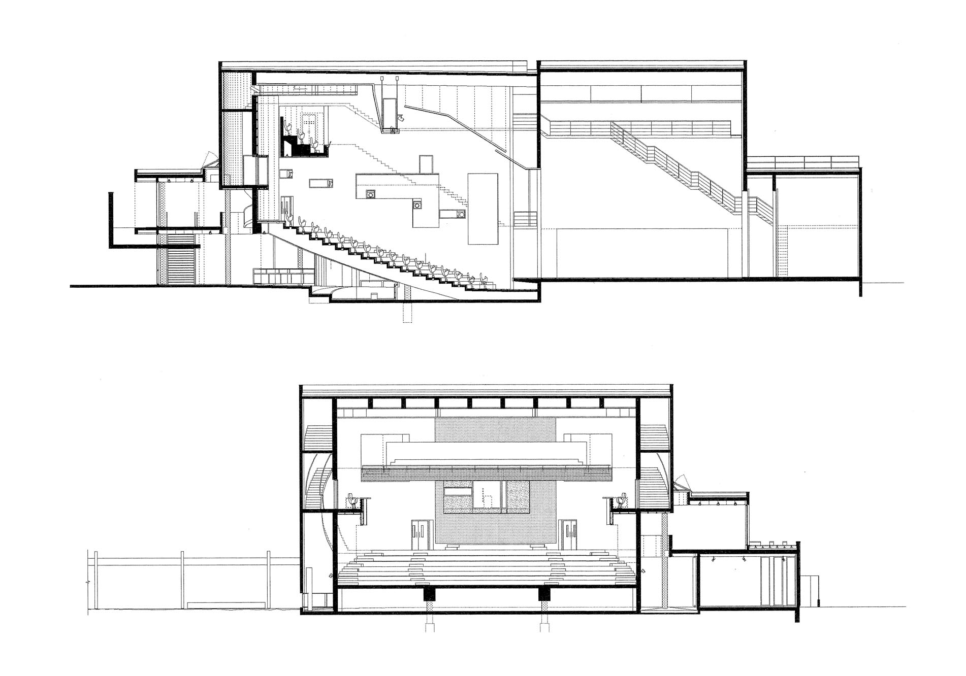
La position du Centre d’Art, inscrit un mouvement concentrique par une enveloppe horizontale d’où émergent la grande salle circulaire et la scène.
Volume cylindrique réalisé par une double façade délimitant les circulations et les parcours verticaux sur plusieurs niveaux.
Portique de la place, la galerie d’accès depuis le boulevard mène vers le hall et les salles d’expositions. Dans la continuité, les espaces des artistes, des décors et des bureaux administratifs tournent autour de la scène.
Premier édifice réalisé en béton blanc auto-plaçant, le Centre Culturel de Meudon, associe le bois bakélisé, l’acier et le verre. Cette salle est conçue comme un salon de musique, dont les enveloppes successives inscrivent et introduisent la lumière.
Maîtrise d'ouvrage
Ville de Meudon
Maîtrise d'œuvre
JRA + BETOM BET tce / Bernard JAUNAY scénographe / LASA acoustique
Surface
2 130 m²
Coût
4,27 M.€ HT
Calendrier
livré en 2000













