Bibliothèque Universitaire - Saint-Quentin-en-Yvelines (78) | Jacques Ripault Architecture
Bibliothèque Universitaire
Saint-Quentin-en-Yvelines, Yvelines (78)
2005
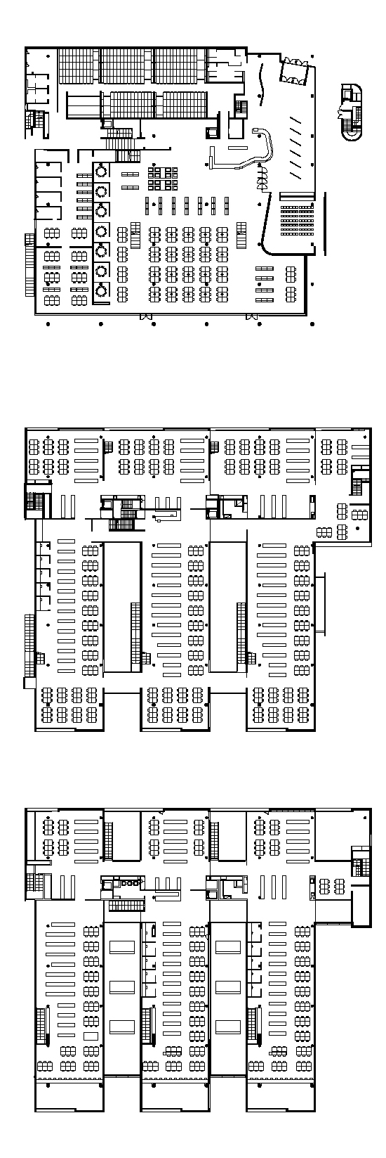
La Bibliothèque Universitaire de Saint-Quentin-en-Yvelines, boulevard Vauban sur le Parc des Sources de la Bièvres s’inscrit dans la succession de bâtiments qui occupent une profondeur bâtie entre le boulevard et le parc. Cette profondeur constitue la façade urbaine du parc par des bâtiments épais qui apportent une densité là où la ville devient parc.
La progression des salles de lectures représentent 3 étages dont la grande hauteur du rez de chaussée qui ouvre un espace panoramique sur le parc, et les deux étages supérieurs qui alternent des doubles hauteurs permettant une fluidité dans les trois dimensions et des percées visuelles.
Les 3 avancées en proue: Philosophie, Sciences Sociales, Histoire et Géographie élancées sur le parc prennent racine et référence dans le corps principal des lettres qui longe le boulevard Vauban. La bibliothèque de Saint-Quentin-en-Yvelines est une épaisseur morcelée, évidée, découpée selon les disciplines représentées et favorisant des accès de lumière zénithales.
Le béton blanc coulé en place, teinte sable, contrasté par les encadrements des baies en acier laqué gris métal et les volumes de couleur (laques ou stuccos bleu et rouge) qui accompagnent le visiteur au cœur des espaces.
Dans cette situation extraordinaire entre ville et parc, le projet par sa structure cartésienne offre une lisibilité et une identité de toutes ses parties.
Maîtrise d'ouvrage
Conseil Régional d’Île-de-France
Maîtrise d'ouvrage déléguée
ICADE G3A
Maîtrise d'œuvre
JRA + BETOM INGENIERIE bet économiste
Surface
8435 m²
Coût
11,6 M.€ HT
Calendrier
livré en 2005









